
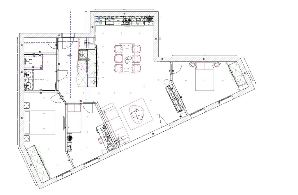
Plans 2D complets. Détails des surfaces et préconisations matériaux.
Réalisation de vos plans de distribution pour la rénovation, modification de plan de construction de maison individuelle ou d’appartement.
Création de cuisines, conseils et courtage.
Préparation, échanges, repas, la cuisine est le cœur de la maison. La fonctionnalité est donc primordiale pour cette pièce et nécessite une conception personnalisée pour chaque projet mais également son esthétisme. Création de votre future cuisine, accompagnements à la réalisation de devis et à la négociation.

Conception d’espaces de vie et Plan d’agencement
Création d’agencements adaptés et sur mesures.

Visuels HD.
Réalisation de projection 3D HD toutes pièces.

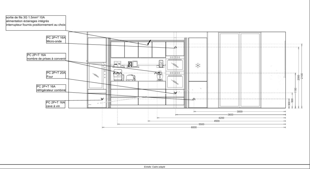
Plans techniques.
Plan technique pour cuisine, salle de bain, buanderie etc

On en parle sur les réseaux





Tarifs:
Le coût d’une prestation est déterminé en fonction de vos besoins, de vos envies et de la complexité du projet. Après un premier rendez-vous pour comprendre votre projet, une estimation de temps de travail est faite et un devis est rédigé.
Taux horaire: 30 euros

